Villa bifamiliare In Vendita a Serina

Serina (Bagnella) - Via Divisione Julia, 5
400.000 €
Codice:V000740
Caratteristiche principali
400
16
Locali
6
Camere
6
Bagni
4
Box auto
Descrizione
VILLA BIFAMIGLIARE - SERINA - LOC. BAGNELLA
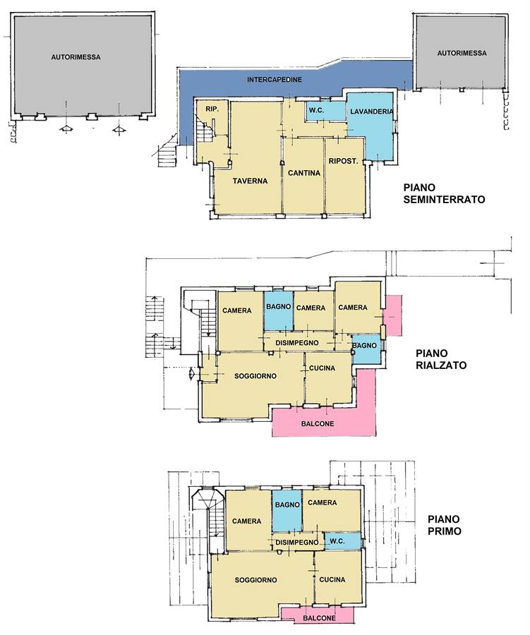
La villa bifamiliare è composta da due appartamenti con ingressi indipendenti. Al piano rialzato, è presente un soggiorno con camino e balcone, una cucina abitabile, doppi servizi, un disimpegno e tre camere da letto. Al piano superiore, è presente un soggiorno con balcone, una cucina abitabile, un disimpegno, doppi servizi e due camere da letto.

La proprietà dispone di quattro ampie autorimesse di cui due con porte sezionali automatizzate; Dispone anche di un ampio giardino privato e molteplici locali adibiti a deposito attrezzi, taverna, lavanderia e ripostigli. Completa la proprietà un rustico indipendente con accesso autonomo.

La posizione della villa è strategica, in quanto si trova vicino ai comuni di Serina, Selvino e San Pellegrino Terme. Tuttavia, sono necessarie alcune opere di completamento dei lavori, come la tinteggiatura delle facciate, le stecche dei balconi, l'installazione di una caldaia e dei sanitari al piano superiore e la sistemazione della scala di accesso esterna.

La villa offre una posizione panoramica e soleggiata, con finiture di qualità. Le superfici dell'immobile sono le seguenti: autorimesse 135 mq, deposito attrezzi 60 mq, rustico indipendente 65 mq, immobile principale 450 mq, terreno pertinenziale 10.200 mq, boschi in un'altra area 21.000 mq.
Caratteristiche
Codice:
V000740
Città:
Serina (Bagnella)
Categoria:
Villa bifamiliare
Locali:
16
Camere:
6
Bagni:
6
Mq:
400
Box auto:
4
Mq Box:
135
Mq Giardino:
10200
Balconi:
3
Anno:
2003
Classe energetica:
D
75,5 kWh/m²a
Posizione:
Montagna
Panorama:
Vista Monti
Orientamento:
Sud
Lati Liberi:
4
Giardino:
Privato
Arredi:
Arredato
Tipo Soggiorno:
Doppio
Tipo Cucina:
Abitabile
Riscaldamento:
Autonomo
Tipo Riscaldam.:
Caldaia
Tipo Impianto:
Radiatori
Fonte Energetica:
Metano
Acqua Calda:
Autonoma
Serramenti:
Ottimo
Persiana:
Persiana Legno
Pavim. Giorno:
Gres Porcellanato
Pavim. Notte:
Gres Porcellanato
Pavim. Cucina:
Gres Porcellanato
Pavim. Bagno:
Gres Porcellanato
Accessori
Armadio a Muro
Camino
Canna fumaria
Doppi Vetri
Impianto Satellitare
Ingresso indipendente
Porta Blindata
Tavolini Esterni
Mappa
Serina (Bagnella) - Via Divisione Julia, 5
Attiva i cookies e ricarica la pagina per visualizzare il contenuto
Planimetrie
Visita l'annuncio sul tuo telefono
QR Code
Vuoi avere più dettagli?
Cookie preference