Villa bifamiliare In Vendita a Mozzo

Mozzo - Via Cesare Beccaria, 1
448.000 €
Codice:V000912
Caratteristiche principali
280
10
Locali
3
Camere
4
Bagni
2
Box auto
Descrizione
VILLA BIFAMILIARE IN VENDITA A MOZZO

In zona tranquilla e riservata ma a pochi passi dal centro di Mozzo, proponiamo in vendita porzione di villa bifamiliare con ampio giardino pianeggiante e box doppio.
La posizione è davvero strategica: nelle immediate vicinanze si trovano scuole, pista ciclopedonale che collega Mozzo a Bergamo e alla Valle Brembana, palestra, centri commerciali e negozi di ogni genere.

L’abitazione, caratterizzata da ampie metrature e ottima esposizione solare, è così composta:

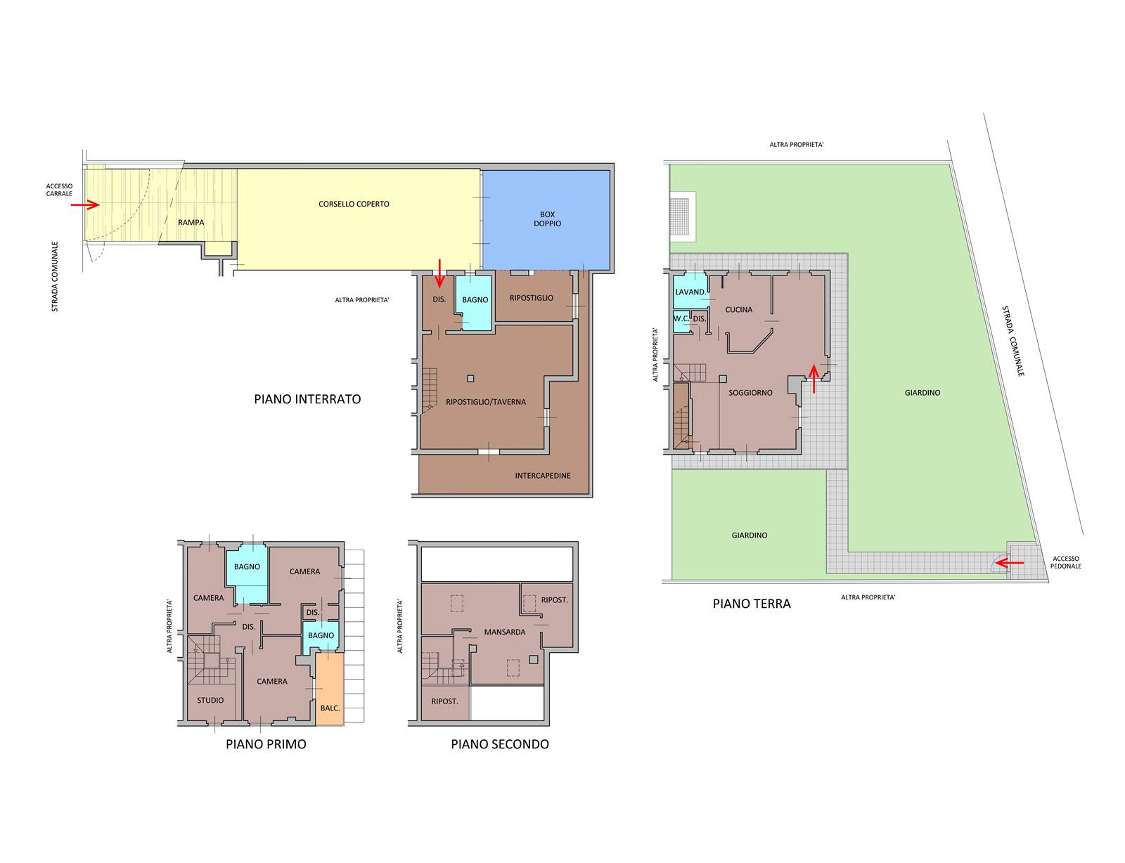
Piano terra: ingresso, luminoso soggiorno con camino e accesso diretto al giardino, cucina abitabile, ripostiglio e bagno di servizio;

Piano primo: tre camere da letto (una con bagno privato), studio, balcone e secondo bagno;

Piano secondo (sottotetto): quarta camera e due comodi ripostigli;

Piano interrato: box doppio in larghezza con spazio deposito, bagno/lavanderia, ripostiglio-taverna e ampia intercapedine.

Il giardino privato, curato e circondato da siepi e alberi, garantisce ottima privacy e offre lo spazio ideale per momenti di relax e convivialità all’aperto.
La buona esposizione solare consente ambienti interni luminosi e accoglienti, mentre l’impianto fotovoltaico contribuisce a un significativo risparmio energetico.

Una soluzione abitativa signorile, spaziosa e completa, perfetta per chi cerca indipendenza, comfort e vicinanza ai principali servizi.

per info: Regacasa 0345-91765 - filiale di Almé
Caratteristiche
Codice:
V000912
Città:
Mozzo
Categoria:
Villa bifamiliare
Locali:
10
Camere:
3
Bagni:
4
Mq:
280
Box auto:
2
Mq Box:
45
Mq Giardino:
340
Balconi:
1
Mq Balcone:
6,5
Anno:
1992
Classe energetica:
G
321,07 kWh/m²a
Stato Immobile:
Abitabile
Orientamento:
Sud
Lati Liberi:
3
Giardino:
Privato
Arredi:
Non Arredato
Tipo Soggiorno:
Doppio
Tipo Cucina:
Abitabile
Riscaldamento:
Autonomo
Tipo Riscaldam.:
Caldaia
Tipo Impianto:
Radiatori
Fonte Energetica:
Metano
Acqua Calda:
Autonoma
Infissi:
Metallo Doppio Vetro
Serramenti:
Buono
Persiana:
Persiana Metallo
Pavim. Giorno:
Cotto
Pavim. Notte:
Cotto
Pavim. Cucina:
Cotto
Pavim. Bagno:
Cotto
Accessori
Antifurto
Camino
Canna fumaria
Cancello Elettrico
Doppi Vetri
ImpiantoFotovoltaico
Impianto Satellitare
Ripostiglio
Mappa
Mozzo - Via Cesare Beccaria, 1
Attiva i cookies e ricarica la pagina per visualizzare il contenuto
Planimetrie
Visita l'annuncio sul tuo telefono
QR Code
Vuoi avere più dettagli?
Cookie preference