🏔️ HOTEL CRISTALLO – FOPPOLO (BG)

Foppolo - piazzale albeghi, 65
2.500.000 €
Codice:V000925
Caratteristiche principali
3400
80
Locali
62
Camere
70
Bagni
5
Box auto
Descrizione
🏨 In vendita intero compendio immobiliare | Ski in – Ski out 🎿
Nel cuore della località turistica di Foppolo, direttamente alla partenza degli impianti di risalita, proponiamo in vendita l’intero compendio immobiliare dell’Hotel Cristallo, storica struttura ricettiva con posizione unica e introvabile.

🎿 Ski in / Ski out reale: gli ospiti possono abbandonare gli sci direttamente all’ingresso dell’hotel, senza necessità di spostamenti.

🛏️ DATI PRINCIPALI
Numero camere: 62 camere
Tutte le camere dotate di bagno privato 🚿
Sviluppo su più livelli: piano seminterrato, piano terra e piani primo, secondo, terzo e quarto
Superficie complessiva indicativa: circa 3.400 mq commerciali
📐 Distribuzione e superfici indicative

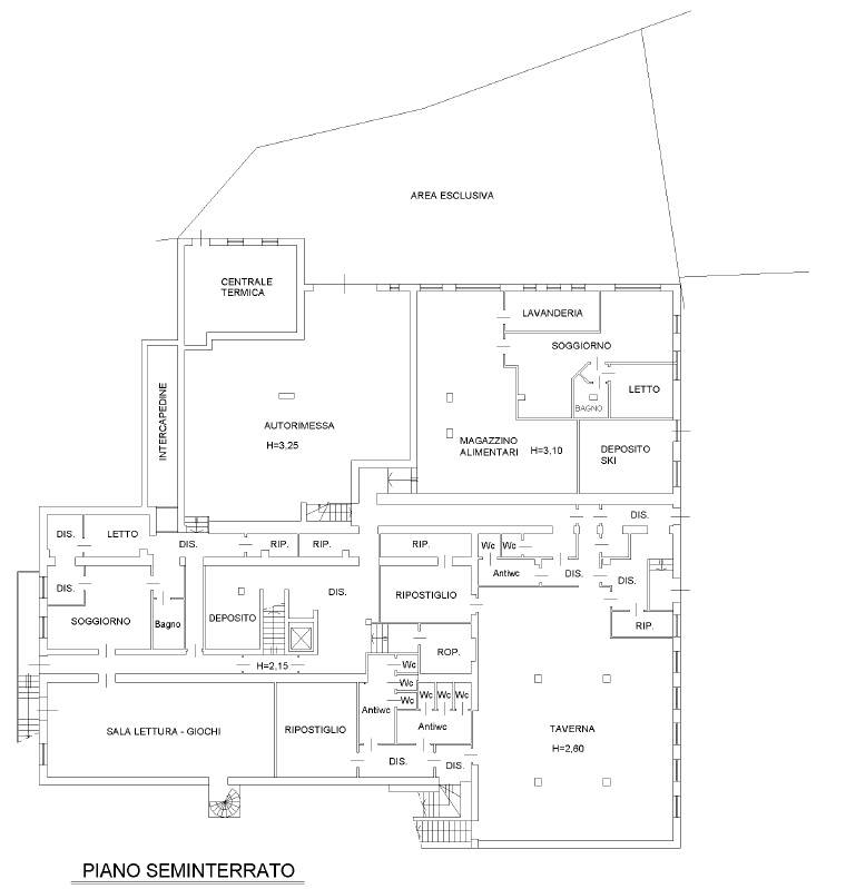
Piano Seminterrato:
autorimessa 🚗, locali tecnici, depositi, centrale termica, locali di servizio, spazi accessori

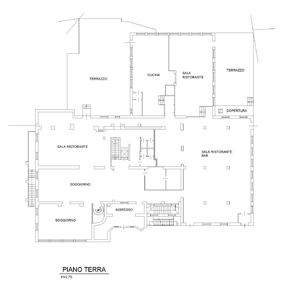
Piano Terra:
ampie sale ristorante 🍽️, zona soggiorno e accoglienza, cucina professionale, servizi, terrazzi esterni ☀️

Piani Primo – Secondo – Terzo – Quarto:
62 camere complessive con servizi privati, corridoi di distribuzione, vani scala e ascensore

🎶 Presente discoteca interna, elemento distintivo e di forte attrattiva turistica.
❄️☀️ Turismo 12 mesi l’anno

L’Hotel Cristallo garantisce ai propri ospiti una vacanza di sport e relax sia in inverno che in estate:
❄️ Inverno: sci alpino, snowboard, turismo montano
🌲 Estate: trekking, escursioni, natura e benessere
💼 Opportunità di investimento

Soluzione ideale per:
✔️ Gestione alberghiera diretta
✔️ Investimento immobiliare
✔️ Rilancio o riposizionamento turistico
✔️ Operazione immobiliare a reddito

📈 Posizione strategica, 62 camere, grandi spazi comuni e ski in / ski out autentico rendono questa proposta unica sul mercato.
Caratteristiche
Codice:
V000925
Città:
Foppolo
Categoria:
Hotel
Locali:
80
Camere:
62
Bagni:
70
Mq:
3400
Box auto:
5
Mq Box:
140
Mq Giardino:
240
Balconi:
5
Terrazzi:
5
Anno:
1970
Classe energetica:
G
425,36 kWh/m³a
Stato Immobile:
Abitabile
Posizione:
Montagna
Panorama:
Vista Monti
Lati Liberi:
4
Riscaldamento:
Autonomo
Tipo Riscaldam.:
Caldaia
Fonte Energetica:
Gasolio
Acqua Calda:
Autonoma
Infissi:
Legno Doppio Vetro
Serramenti:
Buono
Accesso Disabili:
Nessuna Barriera
Accessori
Doppi Vetri
Mappa
Foppolo - piazzale albeghi, 65
Attiva i cookies e ricarica la pagina per visualizzare il contenuto
Planimetrie
Video
Visita l'annuncio sul tuo telefono
QR Code
Vuoi avere più dettagli?
Cookie preference